
Thomai Tsimpou
29 May 2024
Fluid facade, white monolithic Curlicue House
fluid facade envelops all-white monolithic curlicue house in singapore

Curved facade ensures shading and privacy in Curlicue House
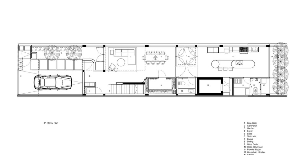
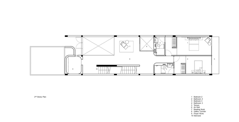
S+Arch Design and Q Architects collaborate on the Curlicue House in Sembawang Hills, Singapore, creating a monolithic residence with a fluid, sculptural facade. The curved facade not only enhances privacy but also shields the west-facing house from heat. Behind it, double-height windows promote ventilation and fill the interior with natural light. To maximize the narrow space—less than six meters wide—the architects strategically aligned all service areas and vertical circulation along one side, allowing for a column-free, double-volume interior. The interior features a light and airy atmosphere with a refined material palette, including limewash plaster, micro-cement, oak timber, brushed metal, bush-hammered granite, and honed marble.

S+Arch design and Q Architects employ passive design strategies
Incorporating passive design strategies such as cross and stack ventilation, S+Arch Design (find more here) and Q Architects (find more here) achieve optimal thermal comfort. Moreover, installing photovoltaic panels on the roof reduces reliance on the electrical grid. Interspersed gardens throughout the property create indoor-outdoor connections, expanding the visual space and fostering a connection between the dwelling and its environment. Landscape interventions by the collaborating studios further enhance the overall sense of tranquility. Carefully positioned greenery, framed by views of lush tree canopies, offers verdant views. Upon arrival, guests are greeted by an olive grove, inviting a connection with the surrounding environment. A central courtyard garden serves to defining public and private domains while facilitating ventilation.

The Residence Interprets traditional architecture in Singapore Thorough detailing adds to the minimalist silhouette of the residence. Transitional spaces within the interior are meticulously crafted for everyday enjoyment. Curved edges in millwork, internal walls, skylights, and the kitchen island bench echo the curved lines of the facade. Curlicue House embodies a contemporary interpretation of tropical Singaporean architecture, where layered planting and carefully selected trees establish a harmonious connection between nature and built form. The resulting spaces exude a sense of purity and tranquility, inviting contemplation amidst the interplay of light and shadow.







project info:
name: Curlicue House location: Sembawang Hills, Singapore architect: S+Arch Design | @starch_design & Q Architects | @qarchitects.sg edited by: thomai tsimpou | designboom
may 29, 2024























