
S+Arch Design
3 Aug 2024
Fluid facade envelops all-white monolithic curlicue house in Singapore
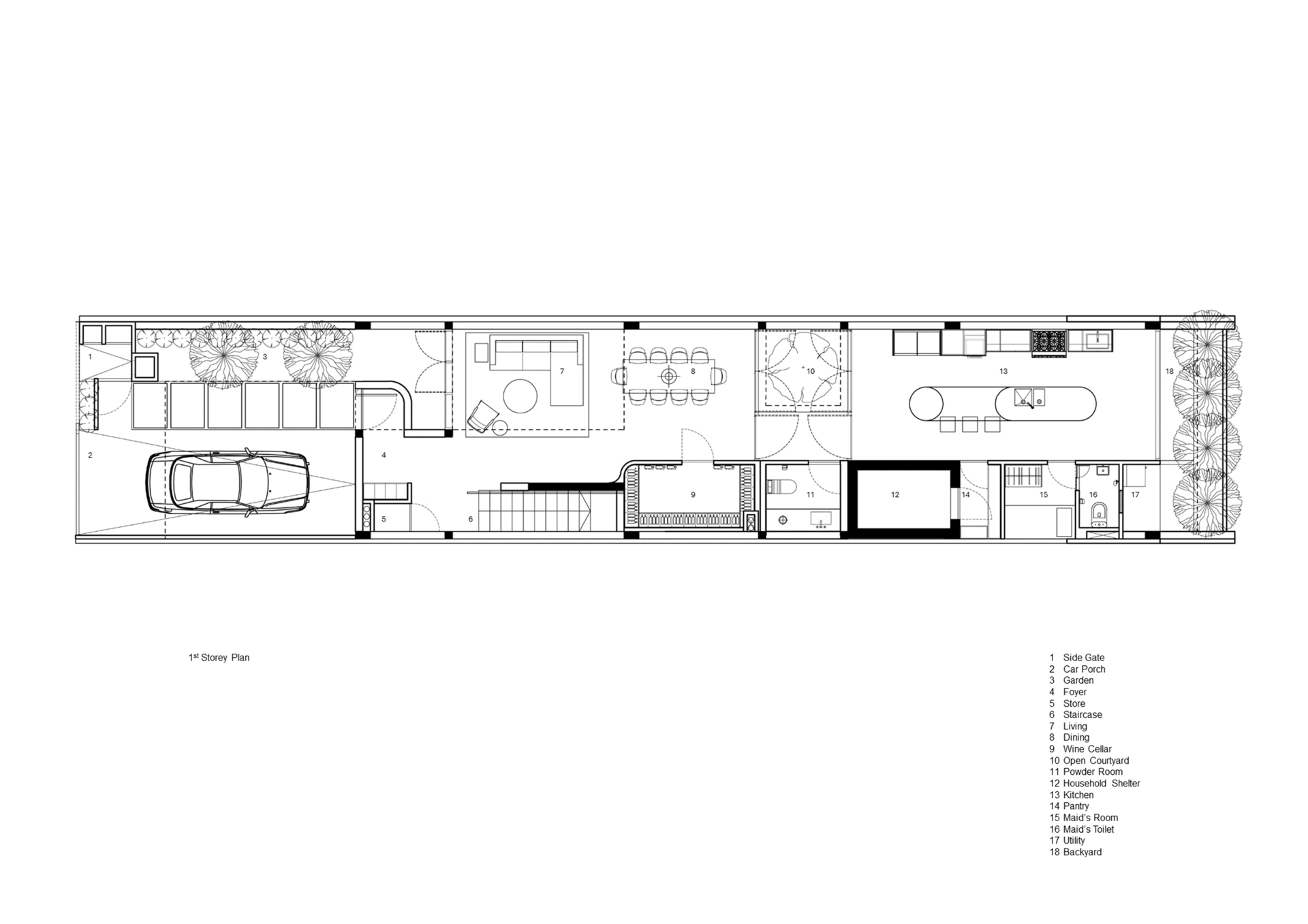
The Curlicue House is a fluid play on precision and whim - it carefully blends indoors and outdoors; straight clean lines with sensual curvatures - a contemporary design with the vibrant essence of tropical Singapore. Layered planting, pockets of greenery, and feature trees punctuate the residence, creating a harmonious connection between nature and the Architecture.
There are pockets of greenery throughout the Curlicue House, coupled with framed views looking out at lush tree canopies, bringing a sense of serenity and tranquility to the homeowners while in the comforts of home.
Transitional/liminal spaces within the Curlicue House are as much celebrated and thoughtfully designed to have moments in the every day to be enjoyed.
As one enters the house, one is greeted by olive trees. This charming landscape welcomes one home, where nature and design combine gracefully to create a calm and inviting atmosphere.
Surrounding the olive trees, carefully chosen plants and flowers enhance the overall aesthetic, adding pops of color and texture - Delicate foliage to complement the beauty of the olive trees.
The landscape garden entrance with olive trees is a visual delight and a sanctuary that invites you to slow down, connect with nature, and embrace coming home.
The olive trees with their silvery-green leaves against the warm textured walls, instantly set the mood for a calming environment. These timeless beauties not only add a touch of elegance to the garden but also symbolize peace, abundance, and longevity.
The Curlicue House is West-facing and employs passive design strategies for thermal comfort in Singapore’s tropical climate, such as cross & stack ventilation via a central court atrium; multiple large window and door openings for natural ventilation, & sun-shading curved facade walls to reduce direct solar-gain from the Western Sun.
Active sustainable and energy-saving measures were also considered using renewable energy harnessed from photovoltaic panels on the roof.
The Curlicue House speaks of a timeless quietness through spatial volumes of contraction and expansion; a calmness rendered with the restrained material palette.
A purity and almost stillness are embodied by the simple yet complex spaces within; a meditative sublime where light and shadow interplay, and an understated elegance in the refined detailing.
Its monolithic form and sheer mass give rise to a monumentality; and at the touch of sunlight, the curved facade walls seemingly dance and sing melodies.
The Curlicue House is a bespoke private home designed and built on the great dynamism of the Client, Designer, Architect, and Builder.
This project opportunity arose from the COVID–19 pandemic and the Project Team was put together through several layers of collaborative relationships.















































































































